政府机关厨房工程项目:
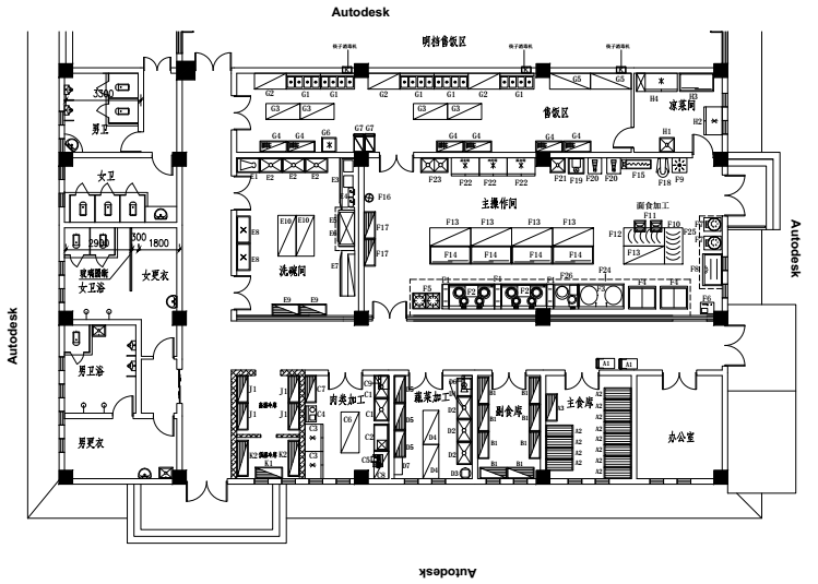
政府机关厨房工程项目设计思路:政府机关员工餐厅的功能区域可划分食品接收、储藏及加工区域,烹饪作业区域,备餐洗涤区域,餐厅,其他行政工作用房。餐厅原料统一采购,统一保管,按照当天计划进行采购,确保蔬菜新鲜,严禁采购腐烂、变质食物,防止食物中毒。
在一些较大的机关、企业、写字楼、等单位都设有自己的员工餐厅,餐厅配备的厨房成为员工厨房。他的构成与一般饭店、酒楼的厨房不同,它着重于主食、副食的制作加工,菜品相对饭店酒楼简单。因为员工厨房出菜时间比较集中,所以应多配置烹调加热设备。

饭厅:饭厅应有足够的净空高度,应宽敞、明亮、通风、洁净。饭厅应面向集中人流主导方向,门前场地开阔,门厅畅通,便于人流集中和疏散。
备餐间、熟食间:是熟食成品配制、分发、供应的主要场所,应采用全封闭式,与饭厅间应用玻璃墙相隔。
热加工间:主、副食品的热加工间是烹饪的主要场地,各类炉灶和烘、烤设备集中。长条形的热加工间较为适用,热加工间的最小面宽为8米。
主、副食品加工间:主、副食品应分流进行加工。主食主要是面食、米饭的粗加工和成型;副食品加工主要是拆洗、刀工切配。加工场地要宽敞,一般长条形流水线式的副食加工间的适宜面宽为10米左右;主食加工间的适宜面宽为8米。
厨房加工区域,包括对原料进行粗加工、精加工等工作。粗加工的主要工作内容有:
(1)对采购的蔬菜进行挑拣、整理、清洗;
(2)对家禽和水产品进行宰杀、分割、清洗;
(3)对肉类原料进行清洗、分档和再加工;
(4)对生鲜原料及时过磅、点验、分拣处理。
精加工的主要工作内容是对初加工后的原料进行分割、成形,改刀为片、丝、丁、蓉等各种半成品。
主食加工间需要使用蒸、煮、炸、烙、烤等多种熟制方法,因此要配备相应的电热或燃气加热设备。以米为原料米饭、粥类产品是不可缺少的主食品种,燃气蒸饭箱、电热蒸饭车、各种能源的夹层摇锅都是主食加热工间的必备设备。
仓库:按物资的类别分为主食仓、副食仓、咸杂仓、杂物仓、干货仓、冷库等。库房的位置要道路畅通,便于进货和方便领料。库房的运输走廊宽度应不小于1.5米。
采购原料食品,要保证新鲜卫生;不得购买未经有关部门检验的肉类,病死、毒死或死因不明的畜禽、水产品及有异味、腐烂、发霉、生虫的原料;各种食品、调料要符合卫生要求,防止过期变质;存放食品、原料要做到离地、离墙,干湿物品不得同室存放。
加工过程需要保证以下几点:
1、食品要做到生熟分开,以确保食品味美纯正。
2、操作时要分台、分池操作,以免交叉污染;蔬菜类要按一拣、二洗、三切、四浸泡的顺序操作。
3、处理过的原料应及时加工烹调,烹调时要煮熟、煮透,以保证食用安全,以防止中毒。
4、加工好的熟食品要妥善保管,如存放时间超过1小时,要重新回炉加热处理后才能食用。
5、生、熟食品要分冰箱存放,以防熟制食品受到污染。
厨房员工必须要有合理的工作空间。空间过小,高度不够,人会感到压抑和闷热,已产生疲劳感以致产生疾病。因此,厨房员工在厨房内的占地面积要合理设计。
厨房内安装了燃气、电气、蒸汽及暖通、冷热水等多种管线,燃气设备的照明工作、电加热设备的大电流工作等造成了厨房的高温、高湿、高危工作环境。因此必须配置系统的、合理的消防设备,有条件的最好设置灶台灭火系统。在平面布局时也要按相应规范留够适当的消防通道。












